Стали известны новые подробности строительства автовокзала в Йошкар-Оле. На сайте Госзакупок появилось объявление о подаче заявок на проведение электронного аукциона.
Максимальная (начальная) цена контракта составляет чуть более 100 миллионов рублей, включив в себя прибыль подрядчика, уплату налогов, сборов, других обязательных платежей и расходов, связанных с выполнением обязательств по контракту. Как указано в документации, строительство будет выполнено за счет средств федерального и республиканского бюджетов.
Заказчиком работ в восточной части города в микрорайоне «Театральный» выступило Министерство транспорта и дорожного хозяйства Республики Марий Эл. Планируется, что работы начнутся уже в мае, а завершатся в ноябре этого года.

Предстоит немало работы: подготовка территории строительства, благоустройство и озеленение участка, решение вопросов с наружными сетями, водоотведением, тепло-, водо- и газоснабжением. Известно, что пропускная способность одноэтажного здания площадью 864 квадратных метра составит 2000 пассажиров в сутки. В здании, кроме зала ожидания, планируется разместить комнату матери и ребенка, комнату отдыха и приема пищи кассиров, камеру хранения ручной клади, кабинет врача, комнату отдыха водителей.
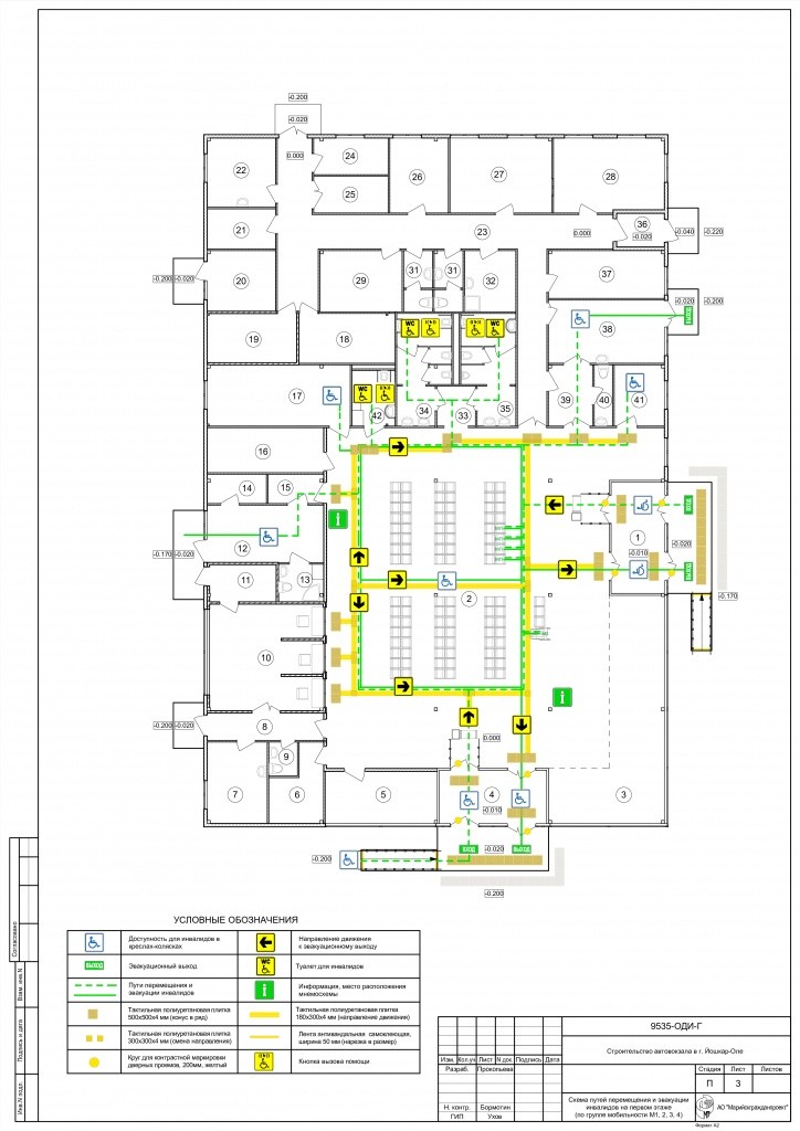
В проекте контракта учитывается и создание доступной среды, проще говоря, удобства для маломобильных граждан. Схемы путей движения и функциональных мест рассчитаны на движение инвалида на кресле-коляске, а по оборудованию - также и на слабовидящих, незрячих и глухих.

Ранее «Марийская правда» сообщала, что в связи с тем, что в Минтрансе не вправе реализовывать денежные средства бюджета на реконструкцию здания, находящегося в частной собственности, было принято решение о строительстве нового автовокзала.






