В Козьмодемьянске (Марий Эл) в этом году начнется строительство нового спортивного стадиона.
Спорт и активный образ жизни в городе на Волге получат еще большее развитие благодаря новому спортивному стадиону, строительство которого на улице Северной начнется уже в этом году.
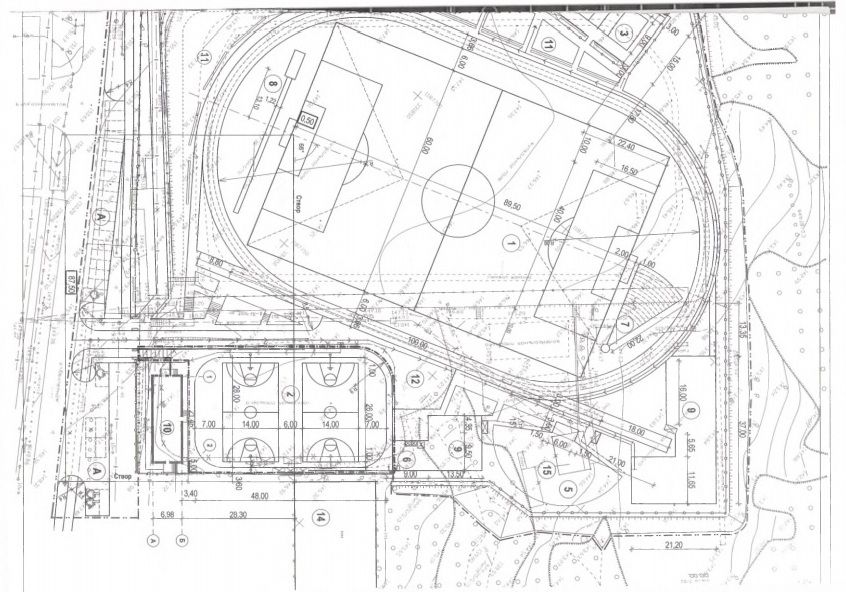
Стадион позволит проводить футбольные и хоккейные матчи, турниры по баскетболу и волейболу, состязания по метанию ядра, прыжков в длину и высоту. Здесь построят беговые дорожки, площадки для занятий гимнастикой, игр в городки.
Строительство будет проводиться в несколько этапов. В этом году начнется оборудование площадки для хоккея с шайбой. По информации, опубликованной на сайте госзакупок, на ее строительство выделяется из федерального бюджета и бюджета Козьмодемьянска 3 миллиона 96 тысяч рублей. Построить площадку необходимо до 7 июня 2019 года.
По проекту, второй очередью начнется строительство футбольного поля 60Х90 метров с беговой дорожкой и площадкой для волейбола.
На территории стадиона установят трибуны на 100 посадочных мест, а для спортсменов и болельщиков за рулем также построят автостоянку, которая вместит 27 машин.
Следует напомнить, что месяц назад, 24 января, Козьмодемьянск посетил Главный федеральный инспектор по Марий Эл Петр Журавлев. На встрече с жителями города среди других тем поднимались и вопросы строительства стадиона в рамках федерального проекта «Спорт – норма жизни». Все вопросы и проблемы, которые обсуждались на встрече, были взяты на контроль региональной приемной Президента РФ.
Схема стадиона в Козьмодемьянске из документов с сайта "Госзакупоки".








